Culver Compound - Master Plan

Currently in Design Development

Project Overview

Every meaningful renovation begins with the same question: what is this place actually trying to be? At this Culver City property — a modest 1,100 square foot home on a generous lot with multiple outbuildings — that question took time to answer. The owners knew something wasn't working. The spaces felt improvised rather than intentional, accumulated over time without a unifying vision. What they needed wasn't just a renovation. They needed a plan.

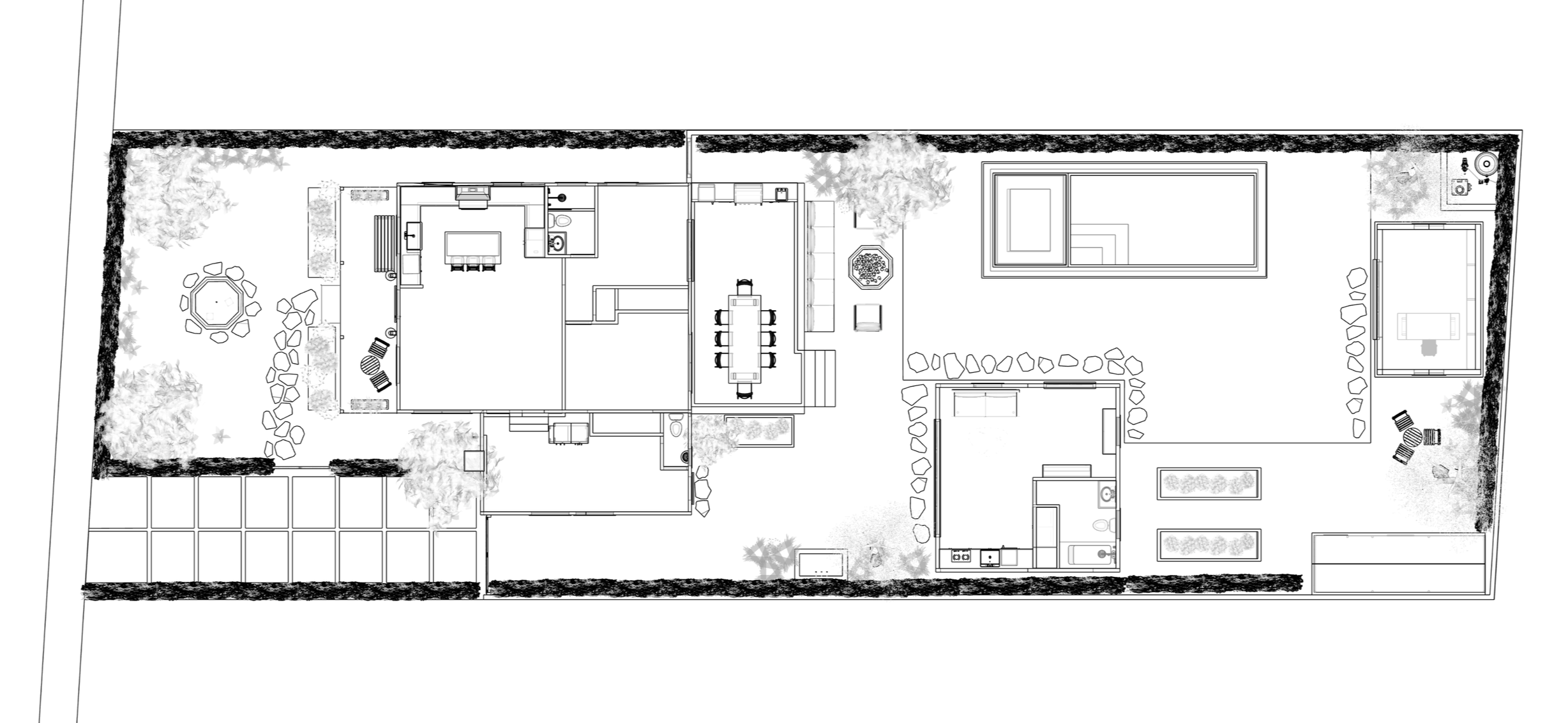
Working closely with the clients, Oliver Power Studio developed a comprehensive master plan for the entire property — main house, outdoor spaces, ADU, studio, pool, and gardens — designed as a single cohesive environment rather than a series of disconnected improvements. The goal was a home that feels calm, purposeful, and effortlessly suited to how the owners actually live: cooking, hosting, working, and spending time outdoors.

The design vocabulary is consistent throughout — cream smooth stucco, dark green trim, black steel window frames, warm wood accents, and natural stone. Inside and out, every space speaks the same language.

Schematic design, design development, 3D modeling, visualization, and project management by Oliver Power Studio.

Architectural Designer

Oliver Power Studio



Vision

The master plan organizes the property around a clear hierarchy of spaces


The main house is reimagined with a new kitchen and open living plan and updated bathrooms — spaces rationalized for daily life and built around the owners' love of cooking and hosting.

The outdoor entertaining area extends the living room outward — a covered pergola structure with outdoor kitchen and dining for twelve, stepping down to a fire pit lounge at garden level.

The pool and rear garden anchor the back of the property — a clean rectangular pool with spa, surrounded by lawn, olive trees, raised garden beds, and gravel paths.

The ADU is redesigned as a proper guest suite — bedroom, bathroom, and kitchenette — so guests can stay comfortably without disrupting the household.

The front garden is transformed from an underused driveway into an arrival sequence — hedged for privacy, with a stone fountain as the focal point.

The studio becomes a dedicated workspace with floor-to-ceiling French doors opening to the pool garden, purpose-built for focused creative work.

Every vision starts with a conversation